Igangværende
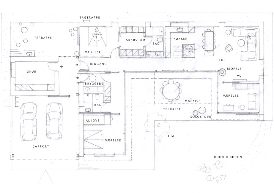
Helårshuset, beklædt med træ, er tegnet til en grund med typisk og rigelig vegetation på Samsø.
Fleksibilitet og lysindfald, der mod syd kan reguleres via skodder, samt enkel funktionalitet har været afgørende, ligesom de bæredygtige elementer som solceller på taget og anvendelsen af jordvarme.
Enkelhed, moderne udtryk og god funktionalitet er nøgleord for dette hus, der også gør brug af bæredygtige teknologier.




