2017
Huset med atelier er skabt på øen Silba i Kroatien sammen med arkitekt maa Zoran Juresa.
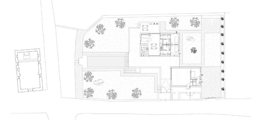
Det ligger nær en århundredgammel kirke, som er vigtig for øen og som huset derfor i højde, farver og udformning forholder sig til.
Grunden var oprindeligt omringet af kalkstensmure – mozire, en tradition på øen – og det er genetableret med natursten og grus fra øen, for at bevare stedets ånd.

Fleksibilitet har været et nøgleord for huset, der ligger på en terrasse med udeopholds arealer, inklusiv et udekøkken og plads til et atelier eller gæstehus. Hovedhuset har to små rum, badeværelser og køkken med stue og soveplads på en altan. Atelieret har to rum, thekøkken og badeværelse.

Regnvandet opsamles fra tegltagene og genbruges i begge huse og i en swimmingpool.
Skodder kan regulere lyset i huset og kan skydes helt til side eller lukkes afhængigt af vejret, der også kan byde på kraftige storme.



